Автоматический угольный котел 150 КВт предназначен для отопления коттеджей, загородных домов, складских, ремонтных баз, офисных зданий, производственных помещений, СТО, теплиц и животноводческих комплексов площадью 860 до 1600 м2. Данная модель позволяет обеспечивать вас теплом и горячей водой, без необходимости постоянного присутствия кочегара в котельной.
Уникальная система подачи топлива и горелки позволяют работать на каменном и буром угле фракцией до 100 мм.
Особенностью угольного котла с автоматической подачей топлива нашего производства является работа на каменных и бурых углях фракцией топлива от 0 до 100 мм. На сегодняшний день это уникальное предложение на рынке отечественных автоматических отопительных котлов. Низкая требовательность к фракции топлива, позволит вам не переплачивать, за сортовой уголь и не беспокоится о его наличии в вашем регионе или населенном пункте. Вам не понадобится дополнительно приобретать угольную дробилку и самостоятельно заниматься подготовкой топлива для сжигания. Для предотвращения зависания топлива в бункере предусмотрен штатный ворошитель.
Автоматический котел 150 КВт работает без дымососа, дымовой трубы достаточно 6 метров. В случае установки котла в пристроенной котельной, высота трубы должна быть выше кровли прилегаемого здания.
Работа вентилятора поддува регулируется частотным приводом, что экономит потребление электроэнергии.
Развитая поверхность нагрева обеспечивает максимальный теплосъем и высокий КПД. При разработке нашего оборудования мы применяем наиболее эффективную конструкцию теплообменников – водотрубную. Теплоноситель двигается по панелям топочной камеры с высокой скоростью, делая многократные повороты по всему периметру трубных панелей. В верхней части котельного блока вода поступает в трубы, расположенные в шахматном порядке. Шахматное расположение позволяет максимально омывать поверхности нагрева и отдавать тепло теплоносителю. Высокая скорость воды в трубах сдерживает процессы отложения накипи в поверхностях нагрева и исключает их перегрев.
Конструкция теплообменников рассчитана на давление 3 кгс/см2 – это позволит вам не беспокоится о возможных течах в котле, вызванных гидроударами в системе.
Удобная и функциональная панель управления, позволяет с легкостью настраивать режимы работы автоматического котла, в зависимости о топлива, погодных условий и требований температурного режима в ваших помещениях.
При кратковременном перебое с электричеством котел автомат 150 кВт продолжает работать в том же режиме, что и до перебоя.
Управление рециркуляционным насосом обеспечивает отсутствие конденсата на поверхностях нагрева при низкой нагрузке.
Имеется автономная система пожаротушения, обеспечивающая безопасность даже при перебоях в системах электроснабжения.
В системе управлении шнековой подачи автоматического котла предусмотрена защита от заклинивания шнека при попадании породы и иных твердых включений.
Котлы с автоматической подачей угля мощностью 150 кВт г Псков в эксплуатации максимально просты и удобны. Геометрия бункера исключает зависание топлива. Бункер вмещает в себя не менее 400 кг топлива. В зависимости от температуры наружного воздуха, температурного режима в помещении и выбранных режимов работы на панели оператора, этого количества хватает до 7 дней «на минимальной нагрузке», в начале и окончании отопительного сезона. Дополнительную экономию топлива вы можете получить, тонко регулируя нагрузку в зависимости от времени суток и недели. Особенно это актуально для производственных, промышленных и офисных помещений, где можно снижать температуру в ночное время, и в выходные и праздничные дни.
Прежде чем купить автоматический котел на угле, на заводе в Пскове необходимо уточнить расположение бункера - правое или левое, в последствие самостоятельно переустановить его невозможно.
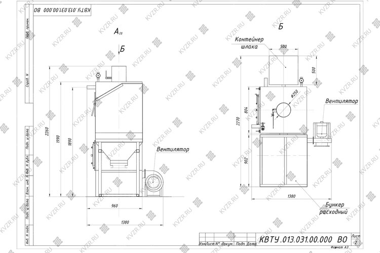
Встроенный шнек автоматически удаляет образующуюся золу и шлак из котла в емкость - накопитель. Вам не понадобится останавливать и очищать котел от золы и шлака. Достаточно периодически очищать емкость для шлака, находящуюся рядом с котлом.
Стандартная комплектация автоматического котла 150 кВт производства Котельный завод РЭП:
Дополнительные опции GSM модуль.
GSM модуль - позволяет контролировать состояние котла и отопительной системы, оповещает о нештатных ситуациях при работе котла. Повышает надежность работы котельной, так как сразу информирует Вас о любых сбоях в работе.
Цена автоматического угольного котла 150 кВт включает в себя котельный блок, шнековую подачу топлива, ретортную горелку, бункер, запорную арматуру и КИП в пределах котла, вентилятор поддува и предохранительные клапаны. Ниже приведена подробная информация.
Для эффективной и надежной работы автоматического угольного котла 150 кВт в вашей котельной вам потребуется дополнительное оборудование - автоматика ЩУК, дымосос, насос сетевой и подпиточный, золоуловитель (по желанию), газоходы и переходники для газового тракта, дымовая труба. Мы предлагаем рассмотреть типовые варианты комплектации.
В случае если у вас на объекте уже имеется насосное и тягодутьевое оборудование, мы можем проверить совместимость автоматического угольного котла 150 кВт нашего производства и вашего оборудования.
Можем изготовить нестандартные узлы для выполнения быстрого монтажа котла - газоходы и узлы обвязки.
Типовую схему монтажа котла вы можете посмотреть во вкладке схемы подключения и монтаж.
Полностью автоматическое регулирование работы котла:
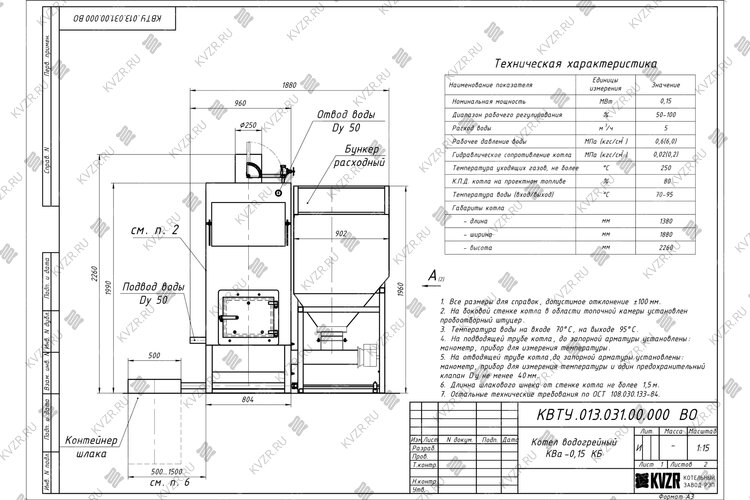
Водогрейный твердотопливный стальной отопительный автоматический угольный котел 150 кВт, предназначен для получения горячей воды номинальной температурой на выходе из котла от 95 до 115 °С рабочим давлением до 0,6 (6,0) МПа (кгс/см), используемой в системах централизованного теплоснабжения на нужды отопления, горячего водоснабжения. Устанавливается в производственных, промышленных и отопительных котельных.
Монтаж водогрейного автоматического угольного котла 150 кВт и вспомогательного оборудования в котельной должно производиться в соответствии с проектом и учетом требований СП 89.13330. 2016 «Котельные установки. Актуализированная редакция СНиП II-35-76» и «Правил устройства и безопасной эксплуатации паровых котлов с давлением пара не более 0,07 МПа (0,7 кгс/см2), водогрейных котлов и водоподогревателей с температурой нагрева воды не выше 388 К (115 С). Правильный монтаж котла – залог его надежной и долгой работы.
Чтобы правильно подключить автоматический угольный котел 150 кВт в котельной необходимо оставить проемы для обслуживания оборудования во время эксплуатации. На представленной здесь схеме указаны их минимальные размеры. Кроме того, в данной примерной схеме монтажа водогрейных котлов и оборудования указан перечень минимально необходимого вспомогательного оборудования для правильной работы котла.
К вспомогательному оборудованию при подключении промышленного водогрейного твердотопливного котла относят - щит управления котлом, насос циркуляционный, насос подпиточной воды, бак запаса воды, расширительный мембранный бак, дымовую трубу, систему газоходов и дымосос, золоуловитель (по желанию).
В случае если подпиточная вода не соответствует по своим характеристикам требованиям к питательной воде, необходимо предусмотреть систему водоподготовки котловой воды.
Для котельных 1 категории, являющиеся единственным источником тепла системы теплоснабжения и обеспечивающие потребителей первой категории, не имеющих индивидуальных резервных источников тепла, необходимо предусмотреть полное резервирование оборудования – подключение 2 (двух) котлов, насосов, ТДМ. Пунктиром обозначено оборудование для резервирования.
Для котельных 2 категории, включающие в себя промышленные и производственные котельные резервирование нужно предусматривать по необходимости.
Образец тепловой схемы подключения оборудования в котельной приведен на данной схеме. При эксплуатации очень важно грамотно осуществить подключение оборудования, установить все контрольно измерительные приборы, для контроля параметров работы котельной и запорную арматуру для оперативного переключения потока теплоносителя при плановой или аварийной остановке оборудования. Данную схему можно использовать как пример для разработки под свой объект или заказать у нас разработку индивидуальной схемы для вашей котельной.
Водогрейные котлы производства Котельный завод "РЭП" соответствуют строгим стандартам качества и безопасности. Завод производит котлы в соответствии с требованиями ГОСТ 30735-3001 по Техническим Условиям завода.
Котлы имеют сертификаты соответствия Техническим регламентам Таможенного союза:

Интервью с главным энергетиком базового комплекса "Сводор" г. Барнаул о работе водогрейного котла нашего производства, отапливающего предприятие с 2008 года.

Отзыв о работе котла КВр производства Котельный завод "РЭП", проработавшего на АО "Водоканал" г. Белокуриха 10 лет. Интервью предоставил заместитель главного директора по производству Суходоев Сергей Николаевич.
Котельный завод производит автоматический угольный котел для отопления мощностью 150 кВт для производства, сушильных камер, теплиц и промышленных твердотопливных водогрейных котельных.
Подобрать мощность котла по площади важно учитывая не только площадь и объем здания, но и тип зданий и климатические данные региона.
На нашем сайте калькулятор расчета мощности котла учитывает тепло, требуемое на возмещение тепловых потерь через строительные конструкции и потери, вызываемые инфильтрацией (проникновением) наружного воздуха, через их неплотности и периодически открываемые двери.
Наружный строительный объем здания должен определяться умножением площади горизонтального сечения, взятого по внешнему обводу здания на уровне первого этажа на полную высоту здания, измеренную для панельных зданий: от уровня чистого пола (нулевой отметки) до верхней плоскости теплоизоляционного слоя чердачного покрытия, для остальных строений от уровня земли.
Расчетная температура воздуха в отапливаемых зданий принимается в зависимости от типа и назначения здания:
В случае если требуется отопление различных по типу зданий, теплопотребление каждого считается отдельно, полученные значения складываются и подобрать мощность котла нужно в соответствии с общей суммарной мощностью каждого отдельно стоящего задания.
Климатические условия вашего региона принимаются в соответствии с СП 131.13330 Строительная климатология. Данные по всем регионам России занесены в наш калькулятор расчета мощности котла.
Подобрать мощность котла по площади с учетом потребностей объекта в тепле на вентиляцию и горячую воду возможно только с более детальным расчетом. Его вы можете заказать в отделе сбыта котельного завода отправив заявку на электронный адрес sb@kvzr.ru или позвонив по телефонам (38-52) 29-97-41, 29-97-42.